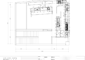
厨房設計・レイアウト参考図
日本料理 K様 席数30席

|
【設計ポイント】
メイン厨房でのポイントは、限られたスペースで働きやすい作業スペースを確保できるよう、厨房機器をレイアウト
しました。
厨房機器の選定は、料理長のこだわりのメニュー(日本料理)に合わせて、当初から希望されていたスチーム
コンベクションオーブン・両面式焼物器・ガステーブルを選定することで、仕込みからメイン料理まで効率よく美味しい料理が仕上がるキッチンとなりました。
冷蔵庫関連は、機能性・コスト面・収納率に優れている三洋製を採用しまた。仕上がった料理を客席まで運ぶ、食器を下げる等の動線に考慮しながら設計しました。
オープンキッチンの天ぷらをいただけるカウンターは、料理長の鮮やかな包丁さばを見て、目にもおいしいお料理をいただけるスペースになりました。天ぷら用のフライヤーはオザキの丸型のフライヤーを採用。その上部に施したステンレスフードが白木づくりのカウンターにマッチして、デザイン的にも効果的になりました。
|
 |
|

■カウンター内 |
| ■メイン厨房、カウンター(オープンキッチン厨房図) |
|
|
カフェレストラン R様 席数40席

|
【設計ポイント】
当初はオープンキッチンも視野に入れていましたが、お店のイメージを考慮して、最終的にはクローズ型のキッチンになりました。
この店舗での厨房機器の選定のポイントは、宮崎の中心地のメイン商業施設内にある場所ということを考慮し、多忙な時間帯にも充分対応できるよう、短時間で茹で上がるパスタボイラー、本場イタリアの石釜を思わせる仕上がりを期待できるピザオーブンなど、イタリアンメニューが効率良く、しかも美味しく仕上がるような機器を選定したことトです。
また冷凍冷蔵庫は、省エネ業界No.1、収納力No.1のサンヨー製のドロワー冷蔵庫Gシリーズを採用しました。ステンレス表面は業界で初めての「DFS仕上げ」で高級感があり、清掃も容易に行えます。
料理が出来上がってから客席に運ばれるまでの流れ、客席から洗浄室まで食器がスムーズに運ばれていくよう、スタッフの動きを考慮して厨房設計をさせていただきました。
|
 |
|

■厨房内 |
| ■メイン厨房設計図 |
|
|
お問い合わせ・ご相談
サンケイでは、お客様のご要望に応じてご希望の設計・施工を致しております。
まずはこちらからお気軽にお問い合わせ、見積りのご依頼をどうぞ。

このページの先頭へ